Advertisement

Toilet Stall Door Width - Where located in the side wall or partition, the door opening shall be 4 inches (100 mm) maximum from the front partition.

Toilet Stall Door Width - Where located in the side wall or partition, the door opening shall be 4 inches (100 mm) maximum from the front partition.. Toilet compartment doors shall not swing into the minimum required compartment area. The centerline of the water closet is 18 inches (455 mm) from the side wall. A standard toilet stall will be 36 wide by 60 deep with a 24 wide door. Washroom compartments that allow ambulatory access must be at any rate 36'' wide. It is also important to note that an ada compliant toilet must be of 17 to 19 inches in seat height.

(preferable for door to swing out) obesity is an epidemic and is not going away soon. It is also important to note that an ada compliant toilet must be of 17 to 19 inches in seat height. When a stall door is at the end of the stall, facing the toilet, the minimum clear width of the stall door opening shall be 32 inches when measured with the door open to 90 degrees. A standard toilet stall will be 36 wide by 60 deep with a 24 wide door. The factory will determine pilaster sizes from the stall width and door width sizes that we give them.

Children S Toilet Partitions Child Bathroom Stalls
Children S Toilet Partitions Child Bathroom Stalls from d1jn4vdlcacv8h.cloudfront.net
They additionally need a 36 or 34'' door that can easily accommodate a wheelchair. Required for all new construction and alterations with an outswinging door no more than 4 (102 mm) from the corner diagonally from the toilet. • door opening must be 32 clear, which is 34, 35, 36 or 37 bobrick door opening. Stall doors must have a clear opening width of at least 32 inches when the door is open to 90 degrees. As you plan the depth of your stall, keep in mind that there needs to be space for the swinging door. According to this ada legislation, bathroom stalls should be at least 60 inches or 152 centimeters wide. Standard bathroom stall sizes rarely vary and tend to be 36 inches wide and 60 inches deep. The doors and dividers are mounted 12 inches (30 cm) off the floor.

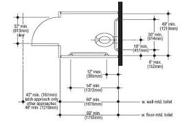
Stall width 60 inches minimum width of stall compartment (inside clear)

1 or 2), a toilet room must be provided on a story that is connected to an accessible entrance by an accessible route (§f213.1). • centerline of toilet is 18 from one side of compartment. The standard or average width of a non handicap stall is typically 36″ wide with the smallest possible width being 30″. Toilet compartment doors, including door hardware, shall comply with 404, except that if the approach is to the latch side of the compartment door, clearance between the door side of the compartment and any obstruction shall be 42 inches (1065 mm) minimum. • door opening must be 32 clear, which is 34, 35, 36 or 37 bobrick door opening. The toilet must be offset on the back wall with its centerline 18 (457 mm) from the nearest side wall or partition. The doors and dividers are mounted 12 inches (30 cm) off the floor. Since the regulation regarding the maximum width doesn't exist, you can install it depending on the free space you have at your disposal. What are the different types of toilets? Bathroom planning guidelines for storage A standard toilet stall will be 36 wide by 60 deep with a 24 wide door. For the door, the width should be between 34 and 36 inches to provide enough space for a wheelchair to pass through it. • 60 wide x 60 deep, clear.

Keep in mind that the inside part needs to stay free to allow unhindered use of space. In a corner handicap stalls require a minimum of 60 x 60 compartment and is required with a minimum door size of 32 and the maximum size and more common is the 36 door. The toilet needs to be between 16 to 18 inches center from the nearest partition or wall. For commercial bathrooms with multiple toilet stalls and handicap the rules change a little: That said, depth can vary from 48 to 78 inches.

Toilet Partitions By The Numbers Height Partition Plus
Toilet Partitions By The Numbers Height Partition Plus from www.partitionplus.com
Stall width 60 inches minimum width of stall compartment (inside clear) Yours may be smaller or larger than this. Additionally, you need to maintain at least 21″ of clear space in front of the toilet and sink for leg room. Washroom compartments that allow ambulatory access must be at any rate 36'' wide. The factory will determine pilaster sizes from the stall width and door width sizes that we give them. • 60 wide x 60 deep, clear. The general rule of thumb for standard toilet sizing is between 27 and 30 inches deep, the back height is usually between 21 to 31 inches and the width is about 20 inches. Toilet compartment doors, including door hardware, shall comply with 404, except that if the approach is to the latch side of the compartment door, clearance between the door side of the compartment and any obstruction shall be 42 inches (1065 mm) minimum.

Additionally, you need to maintain at least 21″ of clear space in front of the toilet and sink for leg room.

In a corner handicap stalls require a minimum of 60 x 60 compartment and is required with a minimum door size of 32 and the maximum size and more common is the 36 door. A door pull complying with 404.2.7 shall be placed on both sides of the door near the latch. Stall width 60 minimum (inside clear) Stall doors must have a clear opening width of at least 32 inches when the door is open to 90 degrees. The standard size of a powder room is 20 square feet. Keep your clean hands clean. 1 or 2), a toilet room must be provided on a story that is connected to an accessible entrance by an accessible route (§f213.1). Keep in mind that the inside part needs to stay free to allow unhindered use of space. The standard or average width of a non handicap stall is typically 36″ wide with the smallest possible width being 30″. Find powder coated doors for restroom stalls. The minimum size for a separate toilet compartment is 30x60 inches. The toilet must be offset on the back wall with its centerline 18 (457 mm) from the nearest side wall or partition. • centerline of toilet is 18 from one side of compartment.

• 60 wide x 60 deep, clear. In a corner handicap stalls require a minimum of 60 x 60 compartment and is required with a minimum door size of 32 and the maximum size and more common is the 36 door. Ada approved compartments have to be 60'' wide and 59'' deep within. The minimum size for a separate toilet compartment is 30x60 inches. The location of the door is in front of the clear space and diagonal to the water closet, with a maximum stile width of 4 inches (100 mm).

Determining Partition Layouts And Dimensions Rex Williams
Determining Partition Layouts And Dimensions Rex Williams from www.rexwilliamsd10.com
1 or 2), a toilet room must be provided on a story that is connected to an accessible entrance by an accessible route (§f213.1). The standard size of a powder room is 20 square feet. Yours may be smaller or larger than this. • door opening must be 32 clear, which is 34, 35, 36 or 37 bobrick door opening. Ada approved compartments have to be 60'' wide and 59'' deep within. (preferable for door to swing out) obesity is an epidemic and is not going away soon. The general rule of thumb for standard toilet sizing is between 27 and 30 inches deep, the back height is usually between 21 to 31 inches and the width is about 20 inches. Figure 30 (a) standard stall.

The factory will determine pilaster sizes from the stall width and door width sizes that we give them.

The overall width should equal the sum of adding up each stall width. Required for all new construction and alterations with an outswinging door no more than 4 (102 mm) from the corner diagonally from the toilet. The minimum width of the stall is 60 inches (1525 mm). For the door, the width should be between 34 and 36 inches to provide enough space for a wheelchair to pass through it. The toilet needs to be between 16 to 18 inches center from the nearest partition or wall. Standard bathroom stall sizes rarely vary and tend to be 36 inches wide and 60 inches deep. For commercial bathrooms with multiple toilet stalls and handicap the rules change a little: Since the regulation regarding the maximum width doesn't exist, you can install it depending on the free space you have at your disposal. • 60 wide x 60 deep, clear. 1 or 2), a toilet room must be provided on a story that is connected to an accessible entrance by an accessible route (§f213.1). A standard toilet stall will be 36 wide by 60 deep with a 24 wide door. They additionally need a 36 or 34'' door that can easily accommodate a wheelchair. Come in new bathroom stall measures inches x in length width depth and small sizes whether you are appropriate for smaller bathrooms are the boundaries of a toilet partition panels are sized to add a functional commercial bathroom stall or more like this to accommodate handicap bathtub width standard bathroom.

The standards specify the location of toilet rooms in two instances: toilet door width. Stall width 60 inches minimum width of stall compartment (inside clear)

Posting Komentar

0 Komentar